
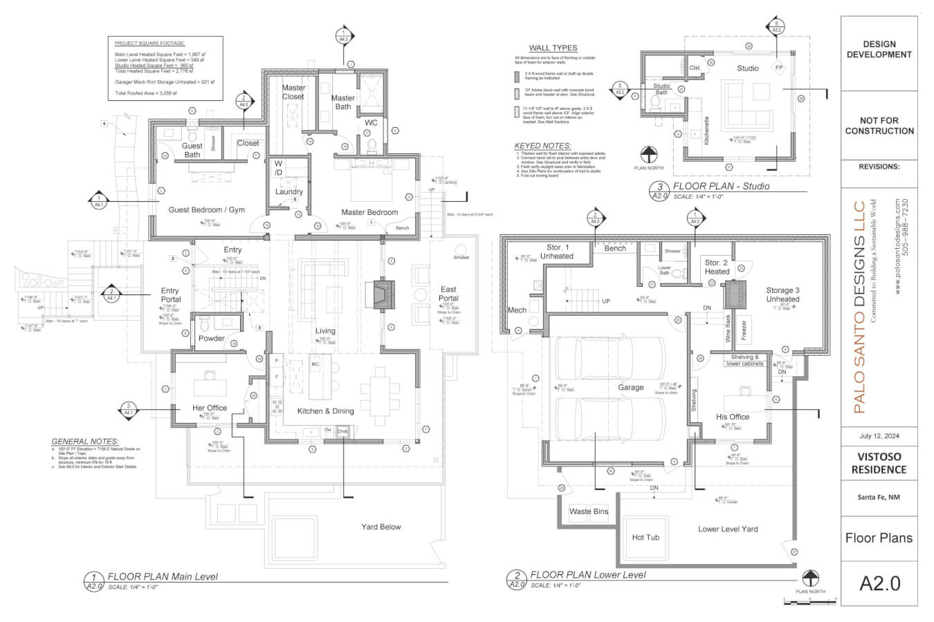
Vistoso Residence
In design now, this Frank Lloyd Wright inspired custom home is set into the foothills of the Sangre de Cristo Mountains, just minutes from the historic downtown Plaza of Santa Fe. The Vistoso Residence features sweeping mountain views, multi-story construction and state-of-the-art high efficiency design for passive and active solar energy and water efficiency, and a super insulated building envelope.
Renderings credit: Stuart Sproul, PSD








