Chisholm Trail

This custom residence at Chisholm Trail in Santa Fe reflects the Owners’ long-held vision for a home rooted in the regional Pueblo style. After years of visiting New Mexico, they sought a house that honors local tradition while blending naturally into the landscape and embracing sweeping western sunset views. The design features thick adobe-style walls, exposed vigas, wood ceilings, Saltillo tile floors, and expansive glass doors that frame the surrounding vistas from every major living space.

Developed in close collaboration with the Owners, the floor plan balances form and function. At its heart is a contemporary Great Room, integrating an open kitchen, dining for ten, and a living area anchored by a traditional kiva fireplace. Large portals extend the living and dining spaces outdoors, creating a seamless connection to the landscape.

The secluded Primary Suite offers comfort and privacy, with its own portal, a spa tub with mountain views, and a large private outdoor shower. Guest accommodations include a detached Casita connected to the main house by a covered breezeway, providing both privacy and accessibility. A hot tub tucked into the landscape and a stone fountain in the xeriscaped entry courtyard add opportunities for serene moments on the property.

Attention to sustainability and practicality is evident throughout. The oversized three-car garage includes EV charging and direct access to the Butler’s Pantry and Kitchen. High insulation values, radiant floor heating, energy-efficient mini-splits, and operable windows support year-round comfort and natural ventilation.
Renderings credit: Stuart Sproul, PSD
Single-story adobe-style house with flat roofs, wooden vigas, and green-trimmed windows, surrounded by desert vegetation under a partly cloudy sky.
Single-story adobe-style house with green-trimmed windows and covered porch surrounded by desert vegetation under a blue sky.
A single-story adobe-style house with flat roofs, stucco walls, and wooden accents, surrounded by desert landscaping and a gravel driveway under a blue sky.
Architectural site plan showing a residence, driveway, pathways, trees, utilities, and property boundaries along Chisholm Trail. Annotations and design notes are included on the right.
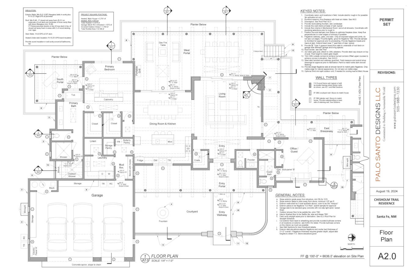
Architectural floor plan of a single-story house shows labeled rooms, garage, courtyard, patio, and notes on construction details. North is oriented upward.
Back to Our Projects

Sign up for our newsletter

"*" indicates required fields

This field is for validation purposes and should be left unchanged.
This field is hidden when viewing the form

Next Steps: Sync an Email Add-On

To get the most out of your form, we suggest that you sync this form with an email add-on. To learn more about your email add-on options, visit the following page (https://www.gravityforms.com/the-8-best-email-plugins-for-wordpress-in-2020/). Important: Delete this tip before you publish the form.
Name*
Email*
This site is protected by reCAPTCHA and the Google Privacy Policy and Terms of Service apply.